免费看片91水力控製閥

800X免费看片91壓差旁通閥產品概述:
800X-10/16P 免费看片91壓差旁通閥是一種用於空調係統供/回水之間以平衡壓差的閥門。該閥門可提高係統的利用率,保持壓差的互定直,並可較大限度地降低係統的噪音,以及過大壓差對設備造成的損壞。800X壓差旁通平衡閥優越於其他平衡閥的地方在於它沒有執行機構,完全介質自身的壓力差來達到平衡係統的功能,節約能源及安裝空間,是一種智能型閥門。
800X 免费看片91壓差旁通閥特點;
800X-10/16P 免费看片91壓差旁通閥又叫作壓差旁通平衡閥,它是一種用於空調係統供/回水之間以平衡壓差的閥門。該閥門可提高係統的利用率,保持壓差的互定直,並可較大限度地降低係統的噪音,以及過大壓差對設備造成的損壞。
800X免费看片91壓差旁通閥安裝注意事項;

1、裝卸:800X壓差旁通平衡閥應小心裝卸,建議用軟的繩索起吊,以免損壞閥及配管,保護塗裝層,閥門應小心地放落地下,不能直接落於地麵。
2、安裝前的檢查:在裝卸到目的地後,首先按ACOL提供的說明書上的內容檢查確認,配管是否正確,連接是否可靠,運輸過程中有無對閥門進行損壞,各種零件是否完整。
3、旁通閥安裝前應清理管道中的雜質,檢查相應的法蘭應與閥門的法蘭的壓力等級,公稱通徑相一致,以保持管路的暢通。
4、在壓差旁通閥前後,應安裝兩隻閘閥,以檢測及維修時使用。
5、壓差導向閥之感應壓力的管道應直接接在供水及回水管道上,以達到能準確反應供回管之間的壓差,為安裝使用的方便,可在感應管道上裝上小球閥。
6、壓差向導閥上兩個接壓口,上麵一個口接到回水管道上,下麵一個口接到供水管道上。
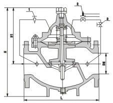
800X免费看片91壓差旁通閥結構及連接尺寸參數;
| 公稱通徑 (mm) | 尺 寸(mm) | ||
| L | H1 | H | |
| 20 | 150 | 126 | 520 |
| 25 | 160 | 126 | 520 |
| 32 | 180 | 126 | 520 |
| 40 | 200 | 160 | 610 |
| 50 | 203 | 160 | 610 |
| 65 | 216 | 180 | 625 |
| 80 | 241 | 200 | 642 |
| 100 | 292 | 270 | 750 |
| 125 | 330 | 310 | 808 |
| 150 | 356 | 320 | 864 |
| 200 | 495 | 370 | 1135 |
| 250 | 622 | 430 | 1185 |
| 300 | 698 | 480 | 1325 |
| 350 | 787 | 525 | 1385 |
| 400 | 914 | 580 | 1445 |
| 450 | 978 | 635 | 1445 |
相關產品


